
AXS —
Immeuble de logements La Clarté Sion
2014 - 2018





























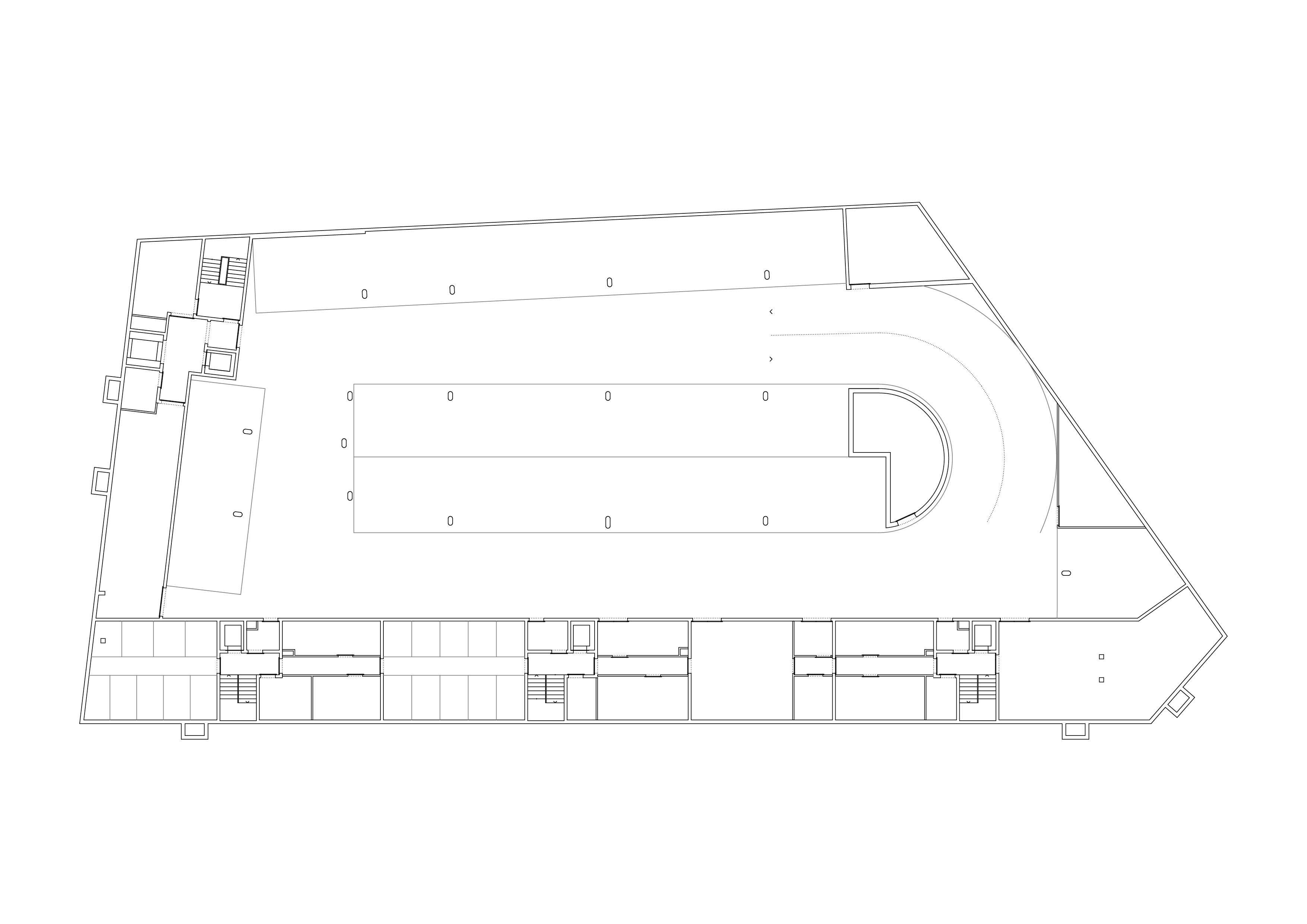
L’immeuble La Clarté se situe sur l’avenue de Tourbillon, à la croisée avec la rue de la Dixence. Le site très urbain est fortement marqué par ces deux axes routiers, traversant Sion d’Est en Ouest et reliant le quartier de Champsec au centre historique. L’immeuble, formant un front d’îlot unitaire, remplace trois immeubles disparates et vétustes. Le projet définit un front précis et rigoureux sur rues et dessine un jardin sur cour. Cette recherche de contraste qualifie le projet, lui conférant une identité forte.
Les façades sur rues présentent une modénature rigoureuse, rythmée par les grandes fenêtres, appuyées sur des tablettes continues en saillie. Le socle en béton préfabriqué sablé assied le bâtiment sur rue. L’angle Tourbillon Dixence, net et franc, est traité en double hauteur. Les façades sur cour sont tout en facettes et courbes créant une ambiance différente, largement ouverte sur le jardin intérieur, avec vues sur les châteaux dominant la ville. Les garde-corps, en barreaudages verticaux, soulignent le dessin en courbes des balcons continus.
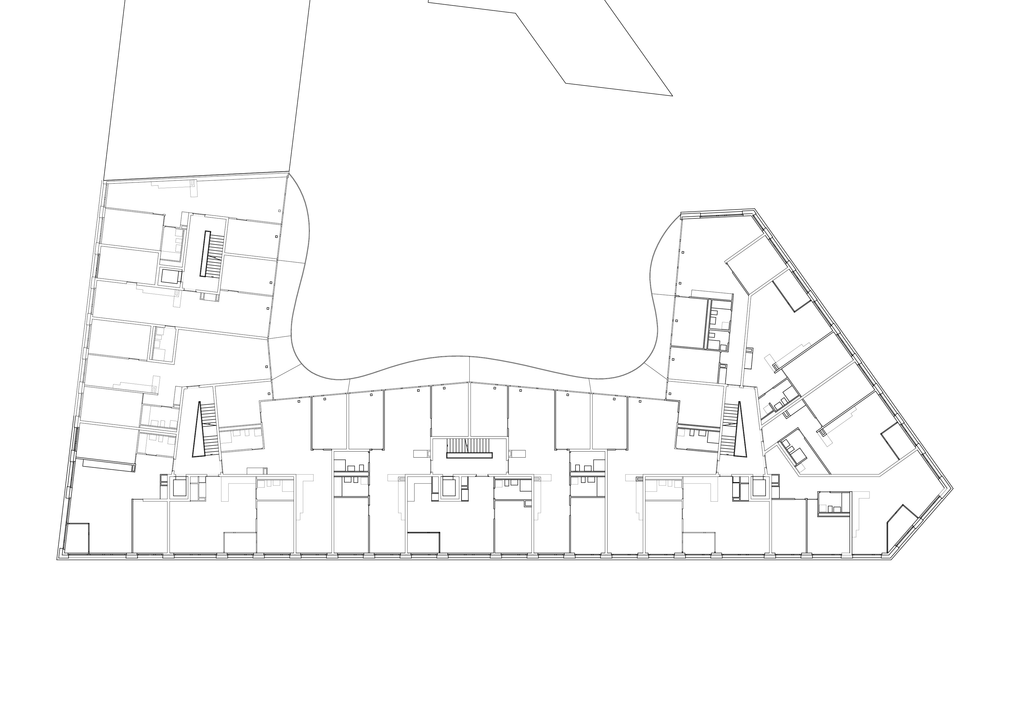
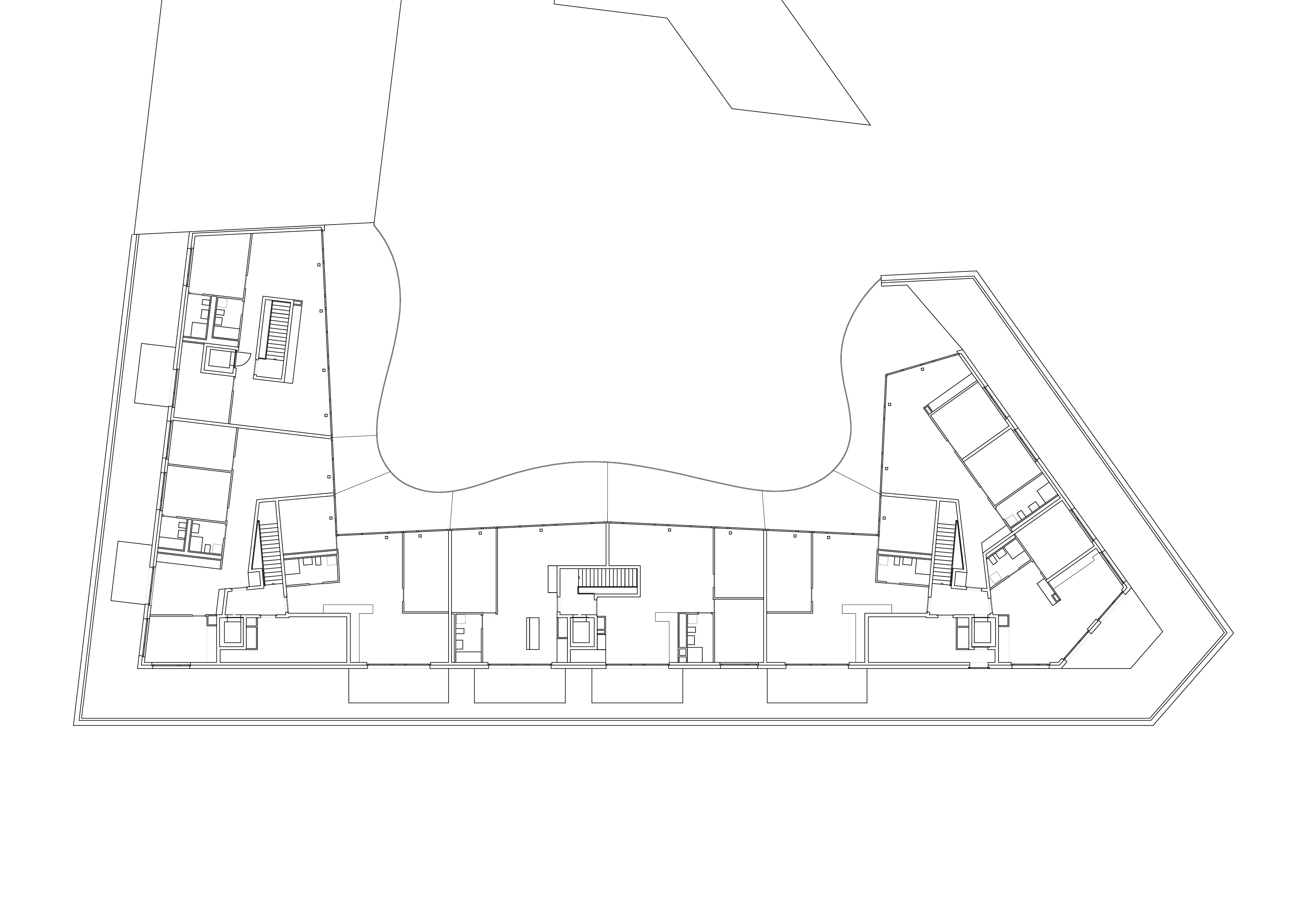
L’immeuble comporte six niveaux couronnés d’un étage en attique. Une grande diversité d’appartements est offerte. Quatre cages d’escalier distribuent quinze appartements par étage. Les grands appartements sont traversant de rue à cour, certains jouissent de la double orientation aux angles, et les plus petits sont mono-orientés. Le rez-de-chaussée organise des surfaces d’activités commerciales sur rues, adossées à des appartements ou bureaux orientés sur cour. La matérialité des façades est minérale. Les espaces communs, parking et cages d’escalier, sont en béton apparent. Le barreaudage extérieur est décliné en garde-corps intérieur. La matérialisation des logements est classique, parquet chêne, cloisons et plafonds enduits, menuiserie peinte.
- ClientAXA Investment Managers Schweiz AG
- MandatConcours de projets
- StatutConstruit
- Dates2014 concours / 2017-2018 réalisation
- Programme87 appartements / Commerces / Parking 100 places
- CollaborateurFrédéric Osterrieth / Martina Deustchova
- Ingénieur gcKurmann Cretton SA
- Ingénieur cvsTecnoservice Engineering SA
- Ingénieur eProtech Sàrl
- Entreprise totale Losinger Marazzi SA
- PhotosRoland Halbe
- Surface14830 m2
- Volume43000 m3
- CoûtCHF 28'400'000.–