
ECC —
Ecole Chateauneuf Conthey
2012 - 2015




























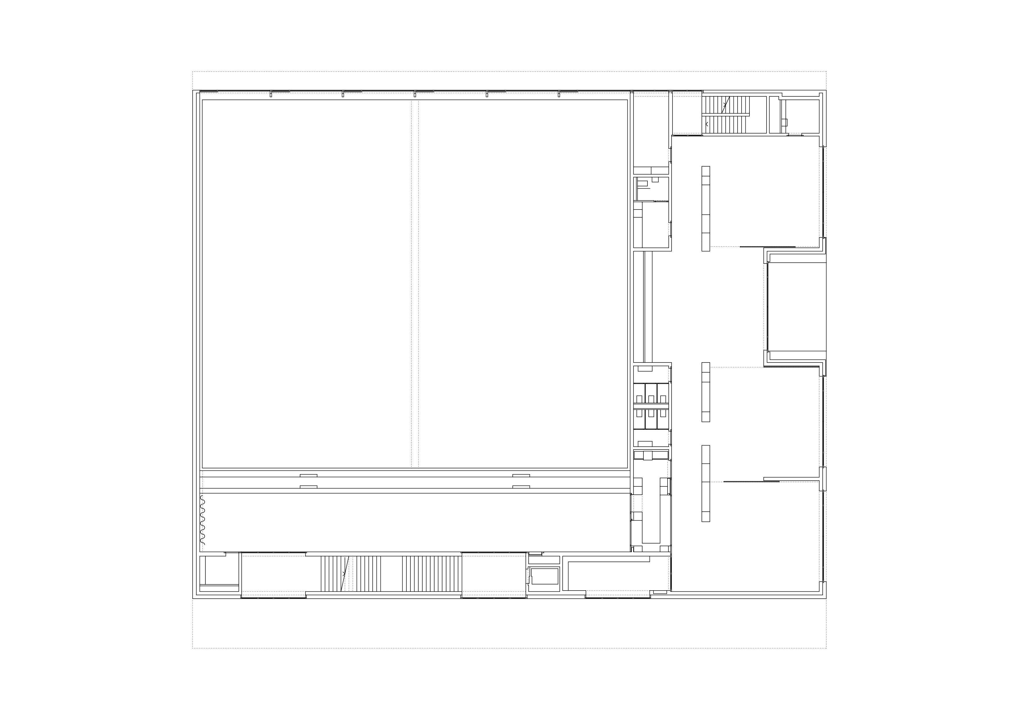
Les trois programmes de l’agrandissement du centre scolaire, soit l’enseignement, le sport et l’accueil, sont regroupés dans un bâtiment unique de forme compacte, implanté au nord du centre scolaire actuel. Les trois fonctions de l’agrandissement trouvent leur position de manière logique. Le préau couvert permet l’accès protégé aux trois entrées indépendantes. La salle de sport double semi enterrée occupe le rez et le sous-sol, avec un hall en balcon sur la salle. Elle jouit d’un éclairage naturel par le grand vitrage nord orienté sur le coteau de Conthey.
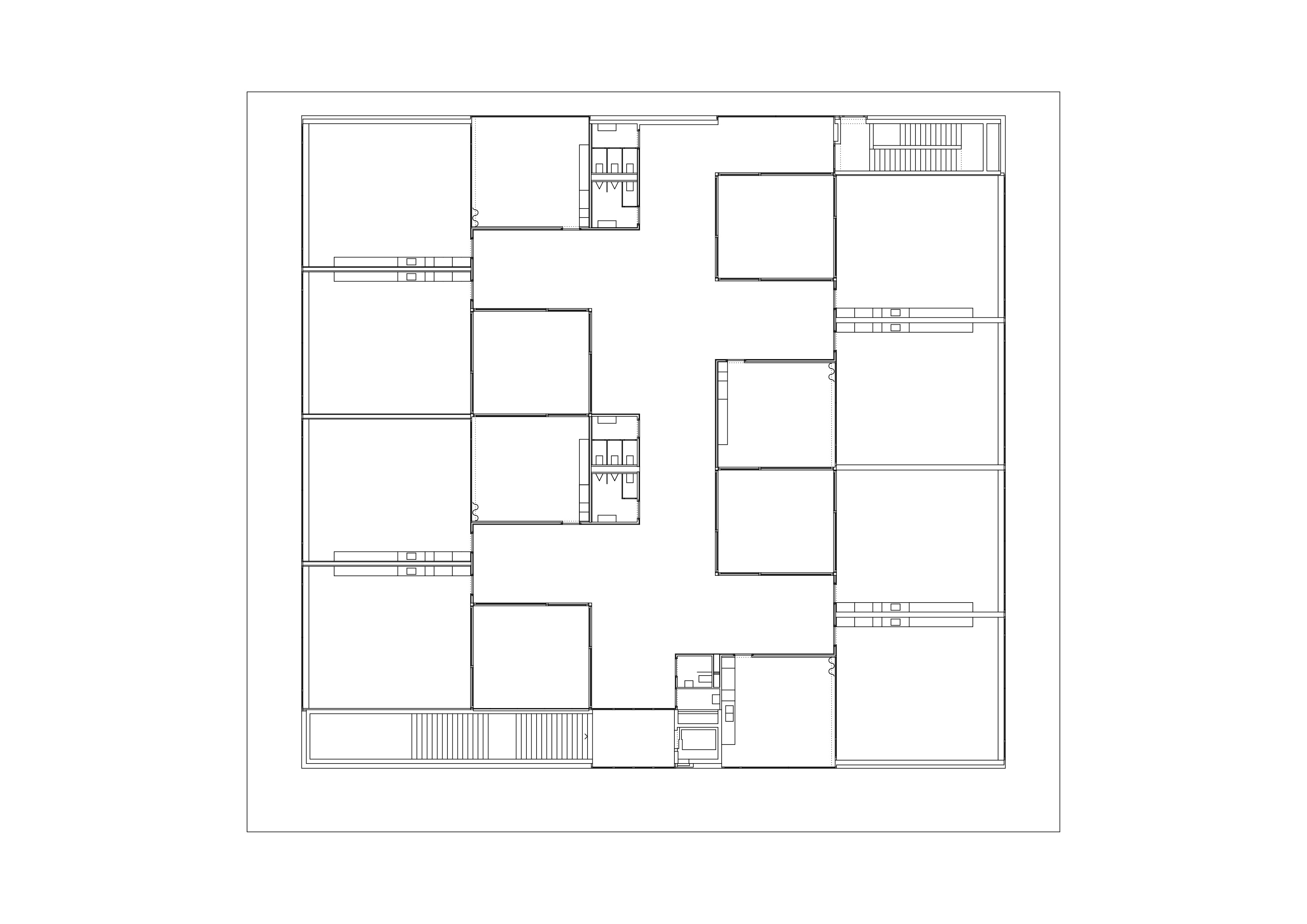
L’unité d’accueil pour écoliers est accolée à la salle de sport. Organisés en enfilade, les quatre espaces de vie s’ouvrent à l’est sur le parc. L’école occupe la surface complète du socle formé par la salle de sport et l’unité d’accueil. Sa conception offre une vie intérieure riche, propice à un enseignement décloisonné. Les huit classes d’enseignement s’ouvrent en façades est et ouest, sur de larges balcons coursives. De proportion carrée, elles prennent leur second jour sur des patios intérieurs qui rythment le grand espace central de distribution. Les petites salles s’ouvrent également sur les patios. Une paroi coulissante permet de les lier à la classe adjacente. L’espace central de distribution offre des sous-espaces bien éclairés, pour de différentes activités. La façade en bardage d’aluminium éloxé noir contraste avec les habillages intérieurs en panneaux stratifiés blancs, revêtant la structure bois de l’étage posée sur la structure béton du socle. Des teintes contrastées qualifient les différentes fonctions.
- ClientCommune Conthey
- MandatConcours de projets
- StatutConstruit
- Dates2012 concours / 2014-2015 réalisation
- Programme8 classes / 4 demi-salles / Salle sport double / Uape
- CollaborateurGeoffrey Gautheron
- Direction travauxSuter Sauthier architectes
- Ingénieur gcPhilippe Bruchez
- Ingénieur cvsTecnoservice Engineering SA
- Ingénieur eLami SA
- PhotosRoland Halbe / Hannes Henz
- Surface3610 m2
- Volume21500 m3
- CoûtCHF 16'300'000.–
- Distinction Distinction Romande d’Architecture_DRA IIII 2018 / Distingué
- typeproject