
GMG —
Immeuble de logements Grand Morillon Genève
2017 - 2021























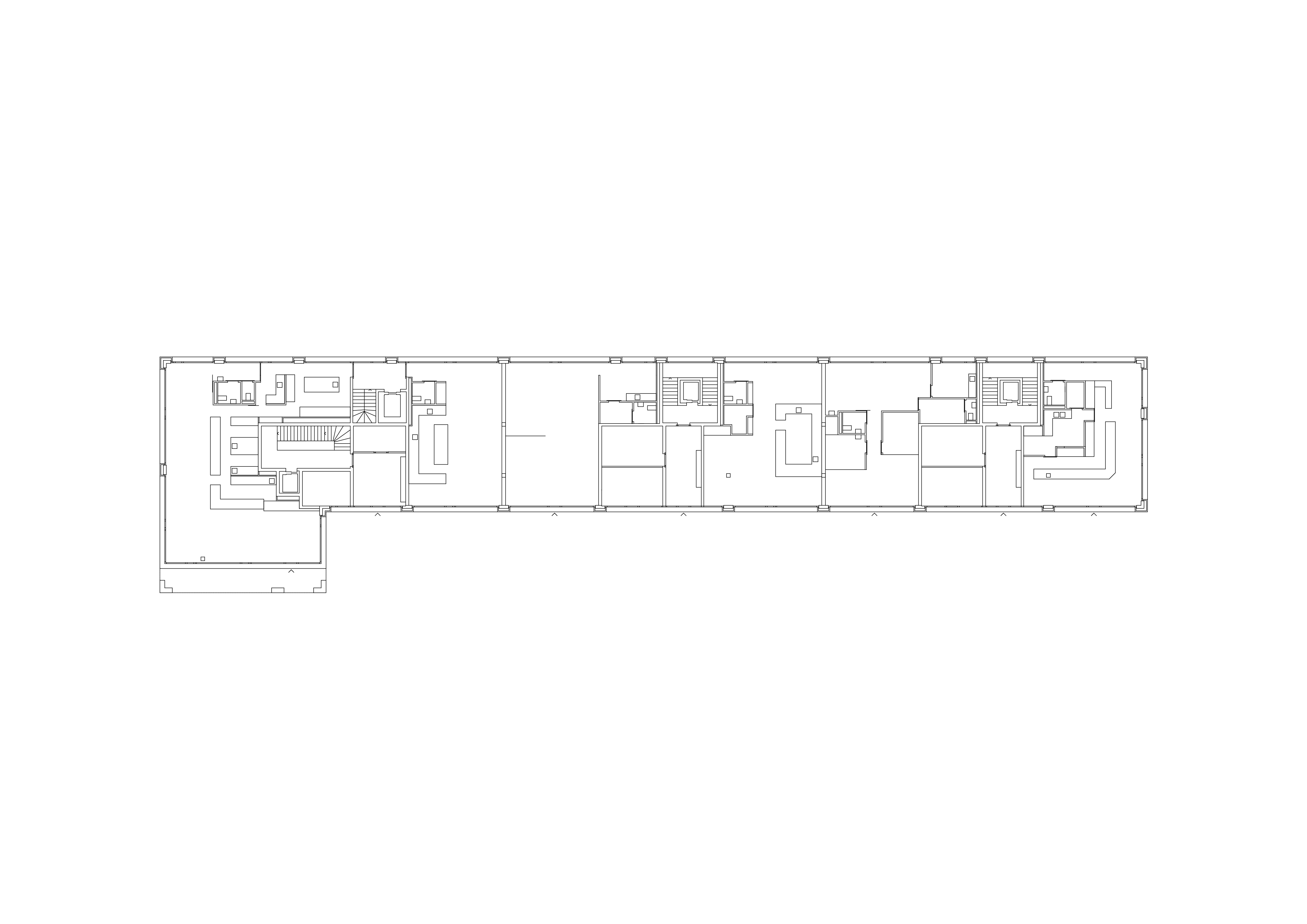
Dans le nord-ouest Genevois, à deux pas du Parc des Nations et du siège européen de l’ONU, le bâtiment de logements de la Fondation Terra & Casa constitue, avec la résidence étudiante voisine et le siège de l'ONG Médecins Sans Frontières, le nouveau quartier de la Cité Internationale du Grand Morillon. Ses logements et son socle commerçant s’articulent en une barre longiligne de 12m de large par 80m de long pour 8 étages sur rez-de-chaussée. La linéarité de celle-ci dialogue avec le large mail public la longeant, et avec les formes géométriques simples des bâtiments à proximité. Le pignon nord du bâtiment, donnant sur la route des Morillons, s’élargit pour marquer la tête du quartier et affirmer son rapport à la ville.
Le projet comprend 88 appartements, dont la typologie permet des pièces de tailles généreuses et similaires. Les portes de communication intérieures sont doublées d’un panneau coulissant, permettant différentes utilisations et liaisons entre pièces. Les espaces intérieurs peuvent ainsi répondre à des usages et pratiques variés. Le rez-de-chaussée offre des surfaces commerciales desservies par des halls d’entrée généreux, couplés aux locaux vélos et poussettes. Le bâtiment est complété par un parking souterrain dont la configuration permet la mutualisation de l'accès avec les autres aires.
La modénature des façades est composée d’une grille exprimant les différentes travées. Réalisée en éléments préfabriqués béton, elle assure la longévité de l’ouvrage et les faibles coûts d’entretien. Les grands percements offrent un apport généreux en lumière naturelle, que les menuiseries en aluminium divisent aux rythmes des cloisons intérieures. La rationalité formelle, typologique et constructive assure au projet une grande économicité tant à la réalisation qu’à l’exploitation. Son expression épurée permet une lisibilité des procédés constructifs, ainsi que du fonctionnement du bâtiment.
- ClientFondation Terra & Casa
- MandatConcours
- StatutConstruit
- Dates2017 concours / 2019 projet / 2020-21 réalisation
- Programme88 logements / Commerces / Parking
- CollaborateurDavid Van Lierde
- Direction travauxSteiner SA
- Ingénieur gcB+S ingénieurs conseils SA
- Ingénieur cvsSRG Engineering Genève / R.G. Riedweg et Gendre SA / Schumacher & CHIngS Ingénieurs SA
- Ingénieur eMAB-Ingénierie SA
- PhotosDI Giambattista / Roland Halbe
- Surface12200 m2
- Volume41500 m3
- CoûtCHF 28'180'000.–