
HPO —
Etablissement médico-social La Providence Orsières
2007 - 2011





















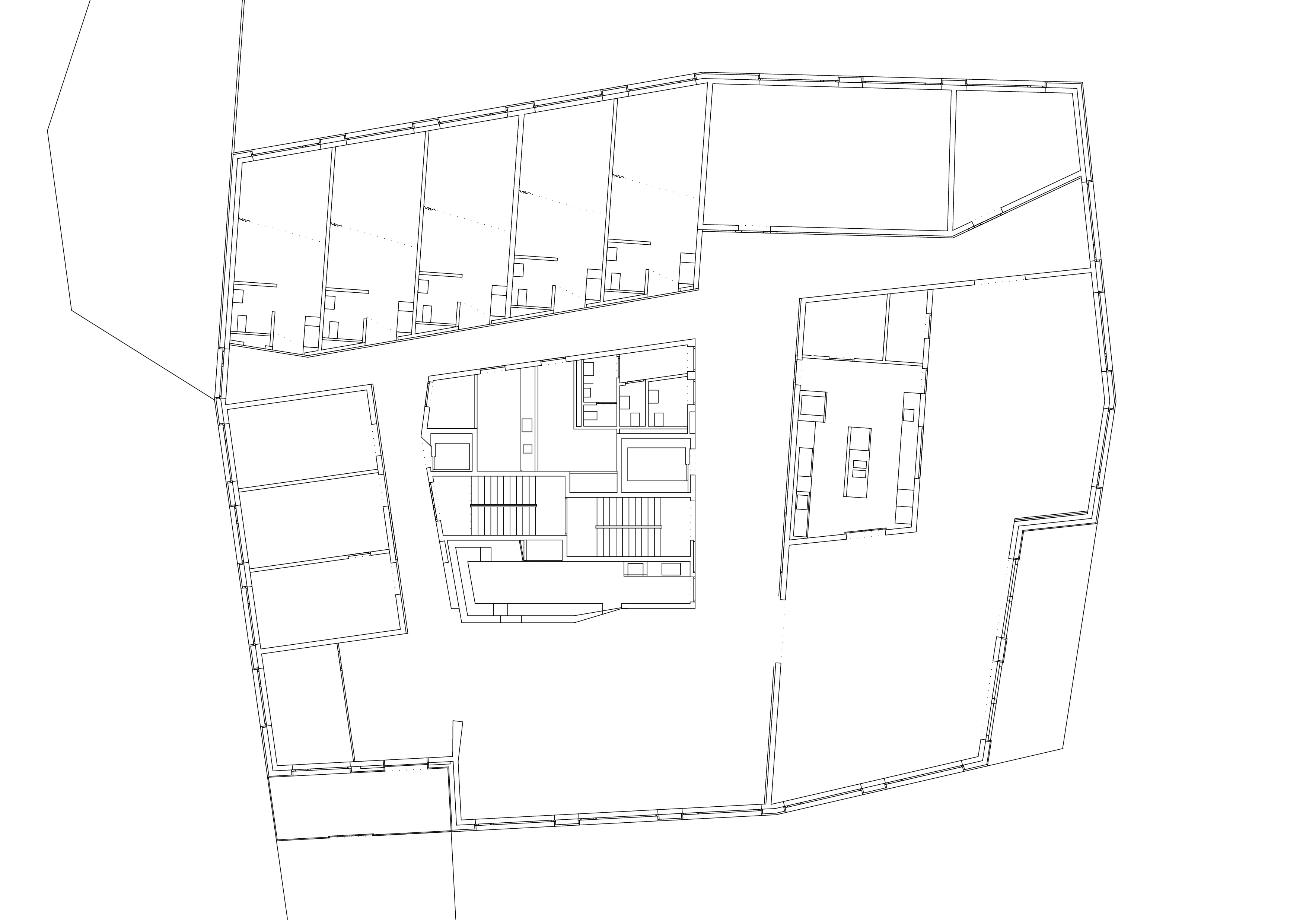
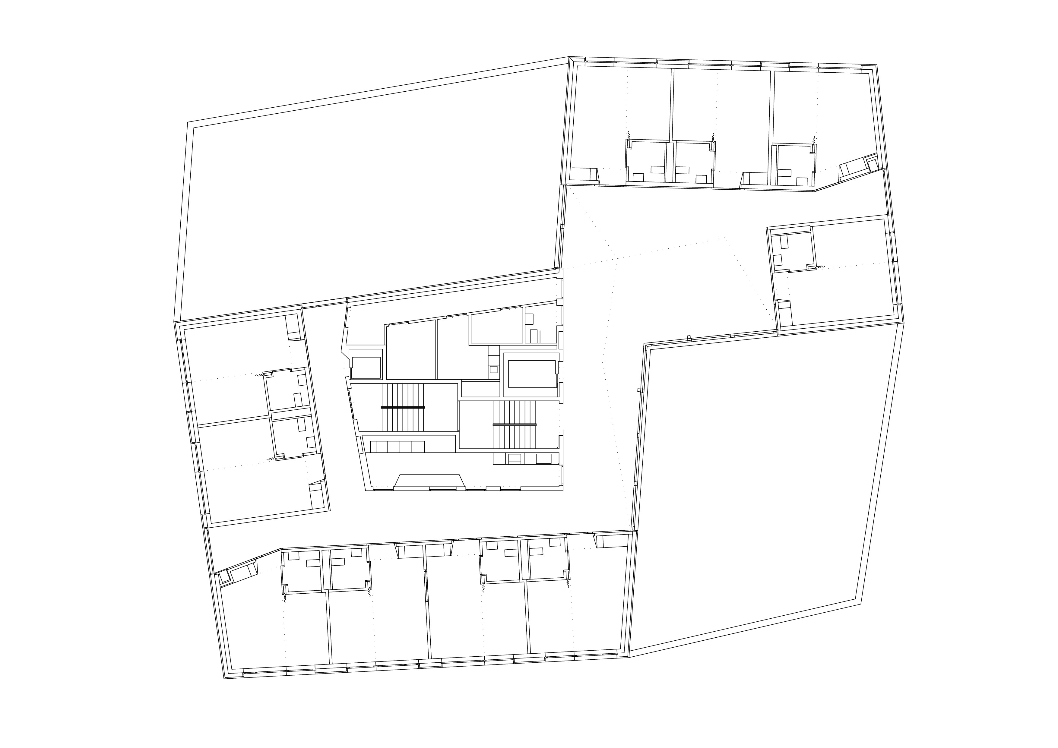
L’établissement médico-social est situé à Orsières, village alpin situé le long de l’axe reliant la vallée du Rhône et l’Italie via la route du Grand-Saint-Bernard. L’établissement est un satellite d’une institution présente dans la région. Elle a pour but d’accueillir 35 résidents issus du village ou des hameaux proches. Il comprend trois unités de vie de 10 lits et d’une unité d’accueil temporaire de 5 chambres. La volumétrie du bâtiment prend ses racines dans l’environnement construit alentour constitué de maisons individuelles et de bâtiments de logement collectif. Sa forme unitaire possède un toit à deux pans et deux angles évidés qui permettent d’un côté la création d’une terrasse extérieure protégée au sud ouest et de l’autre, une future extension du projet au nord est.
Les façades, comme les toitures, sont revêtues d'une peau légère en aluminium profilé de teinte or, qui fait référence aux couleurs changeantes des coteaux du val d’Entremont. A l’intérieur, une attention particulière est apportée à la question de la perception. Les espaces communs des étages, couloirs et séjours jouissent d'une ambiance colorée différente d'étage en étage pour permettre au résident une orientation aisée. La configuration des espaces communs offre aux résidents un lieu de déambulation à l’abri. Les couleurs chaudes des murs, des sols et des plafonds se mettent en contraste avec la teinte blanche des portes et des barres d'appui pour le confort visuel des personnes âgées.
Le rez-de-chaussée comprend différents espaces communs en relation avec le jardin et cinq chambres s’ouvrant sur l’école. Les étages reprennent à chaque niveau une typologie identique à savoir une unité regroupant dix chambres et un séjour commun. La chambre type, dotée d’une salle de bain individuelle, est de taille généreuse avec son coin séjour et son alcôve pour le lit. Elle s’ouvre sur le paysage par une grande fenêtre, en deux parties, selon deux hauteurs différentes pour qualifier les deux sous-espaces.
- ClientFondation Maisons de La Providence
- MandatConcours de projets
- StatutConstruit
- Dates2007 concours / 2009-2011 réalisation
- Programme35 chambres / Séjours communs / Services
- CollaborateurEwout Gysels
- Ingénieur gcThetaz SA
- Ingénieur cvsTecnoservice Engineering SA
- Ingénieur eLami SA
- PhotosHannes Henz
- Surface3730 m2
- Volume12620 m3
- Coûtchf 10'760'000.–
- LabelMinergie
- typeproject