
MKL —
Maison individuelle Les Evouettes
2015 - 2016




















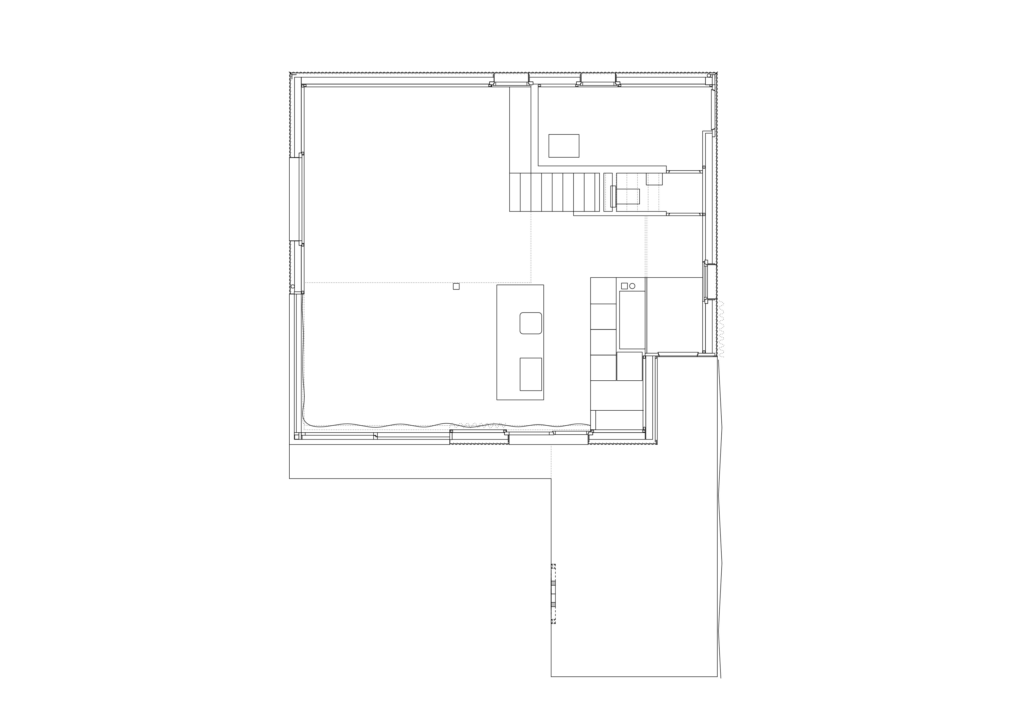
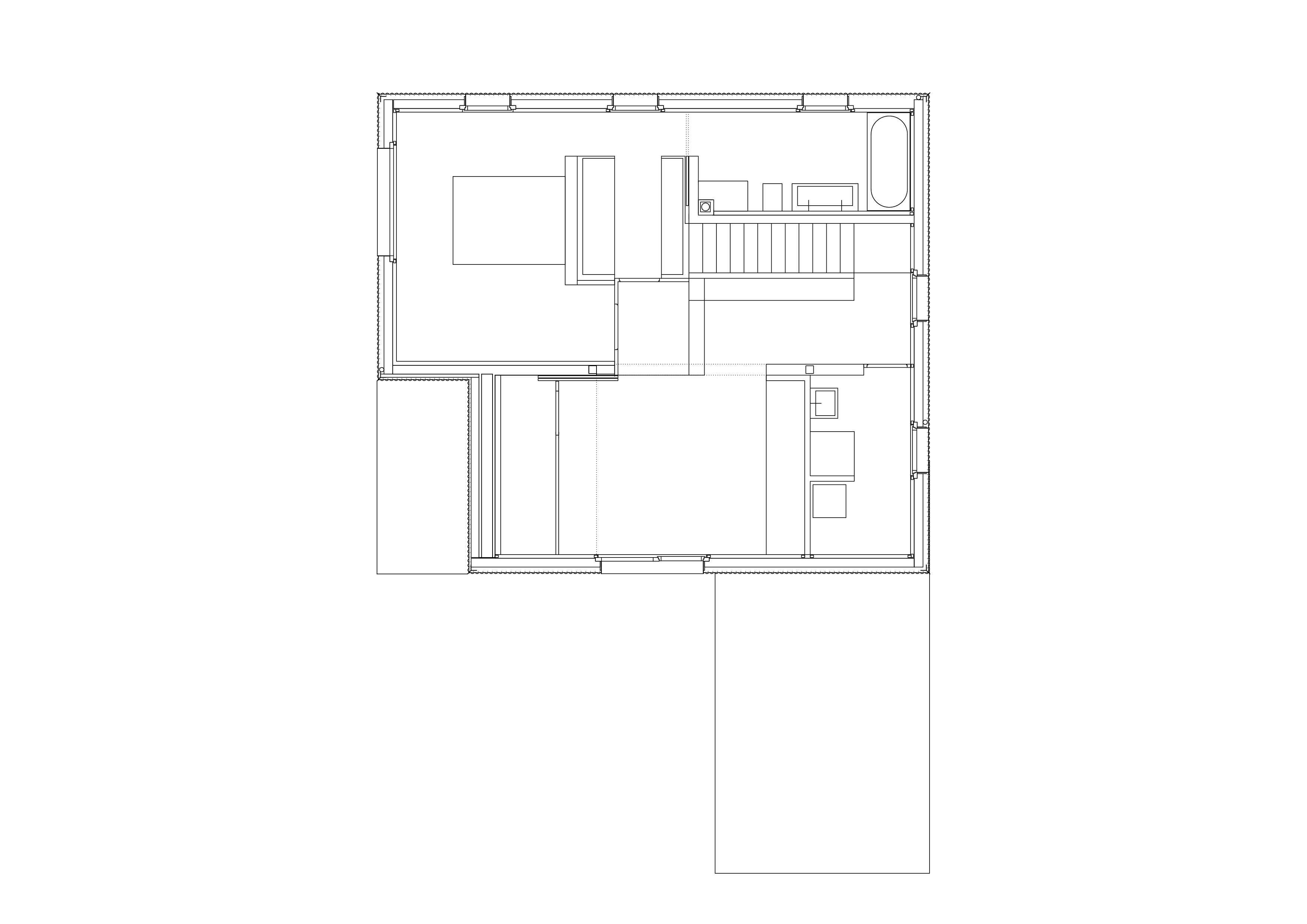
En Suisse, la tradition dans les campagnes était de construire un petit habitat pour la retraite des parents à côté de la grande ferme, le Stöckli. La maison des Evouettes fait le contraire. Il s’agit d’une petite maison pour le benjamin de la famille construite dans le jardin de la maison des parents. Le terrain relativement exigu et le programme restreint, limité à un espace jour, un espace nuit et un coin bureau, a permis la réalisation d’une petite maison compacte de base carrée tout en offrant une volumétrie expressive par la forme de sa toiture et l’accroche de l’auvent en façade sud.
Cet espace couvert répond à plusieurs destinations : il est l’espace d’accueil d’entrée dans la maison, en hiver il abrite la voiture, en été il sert de terrasse couverte, protégée d’un rideau en bâche de camion. L’espace jour occupe le rez : les fonctions cuisiner, manger, se reposer, sont définies spatialement de manière simple : la cuisine et le coin repas sont en contact avec le jardin par le vitrage en angle, le séjour jouit d’une hauteur accrue. L’étage reçoit l’espace nuit. La chambre à coucher regarde par une haute fenêtre le Grammont, sommet marquant l’entrée de la Vallée du Rhône. Une paroi coulissante permet de convertir le coin bureau en chambre d’amis. A l’image d’une cabane dans le jardin, la maison est bâtie en ossature bois sur un radier béton. Sa peau est un bardage d’aluminium ondulé éloxé et perforé en façade, pour permettre une pose continue devant les fenêtres des espaces de services.
- ClientPrivé
- MandatDirect
- StatutConstruit
- Dates2015 projet / 2016 réalisation
- ProgrammeMaison individuelle 3 pièces
- CollaborateurArnaud Zehnder
- Ingénieur gcSollertia SA
- PhotosRoland Halbe
- Surface160 m2
- Volume680 m3