
MRM —
Maison familiale Mazembroz Fully
2013 - 2014























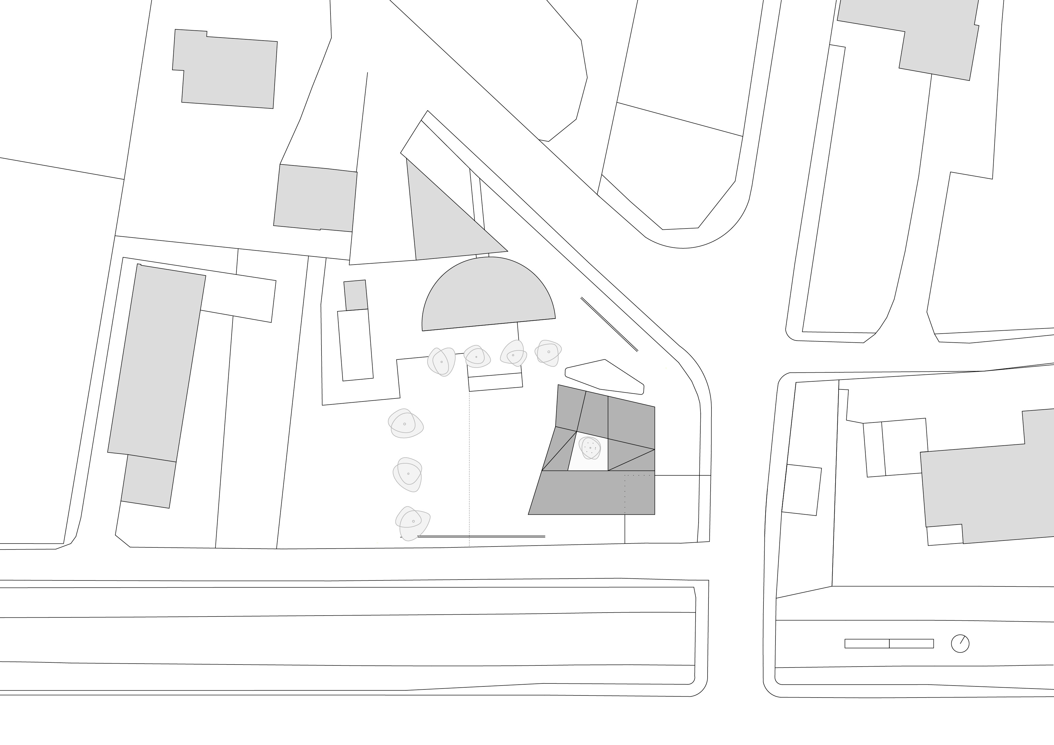
La maison est implantée à Fully, à la lisière des vignes, au pied du Chavalard, montagne emblématique du village. La principale contrainte de la parcelle était la présence d’une maison adjacente. Malgré leur proximité, les deux maisons ne devaient pas se gêner l’une et l’autre. De plus, chacune d’elle devait garder sa propre intimité. Pour répondre à ces exigences, la maison se situe à la limite du terrain et s’articule autour d’une cour intérieure semi-ouverte. Cette dernière permet ainsi les échanges visuels à travers les divers pièces de la maison et non sur celles des voisins. La maison est principalement orientée sur elle-même, cependant deux grandes fenêtres, dans le salon et dans la chambre à coucher, s’ouvrent au nord sur le Chavalard.
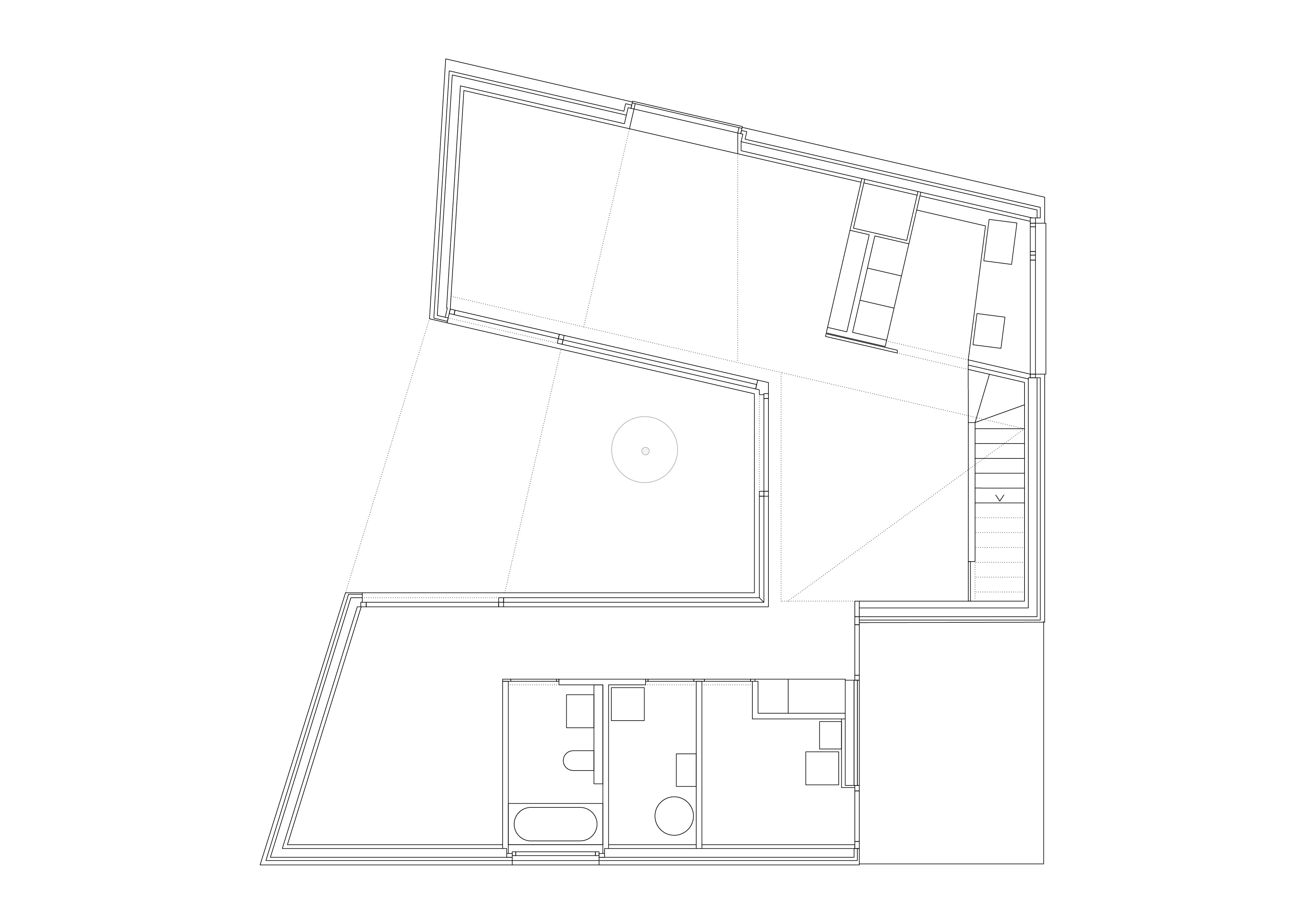
La maison familiale se développe sur deux niveaux : le rez-de-chaussée qui comprend les espaces de jour et le premier niveau où se trouvent les espaces de nuit. L’intérieur de la résidence a été pensé pour permettre aux propriétaires, amateurs d’art, d’exposer leur collection. En effet, les murs sont blancs et des luminaires sont disposés en conséquence. Grâce à la cour, la maison est illuminée naturellement et de manière indirecte, afin de ne pas endommager les œuvres d’art. Les façades s'habillent de tôles ondulées dorées, inspirées de la douceur des ondes du vignoble avoisinant en automne. Le revêtement homogène de la maison prend la fonction de peau protégeant ainsi la vie privée, à l’image d’une carapace…
- ClientPrivé
- MandatDirect
- StatutConstruit
- Dates2013 projet / 2014 réalisation
- ProgrammeMaison familiale 4 pièces
- CollaborateurMartin Dauner
- Ingénieur gcPhilippe Bruchez
- PhotosRoland Halbe
- Surface190 m2
- Volume850 m3
- typeproject