
RAM —
Extension cabane Rambert Leytron
2009 - 2015































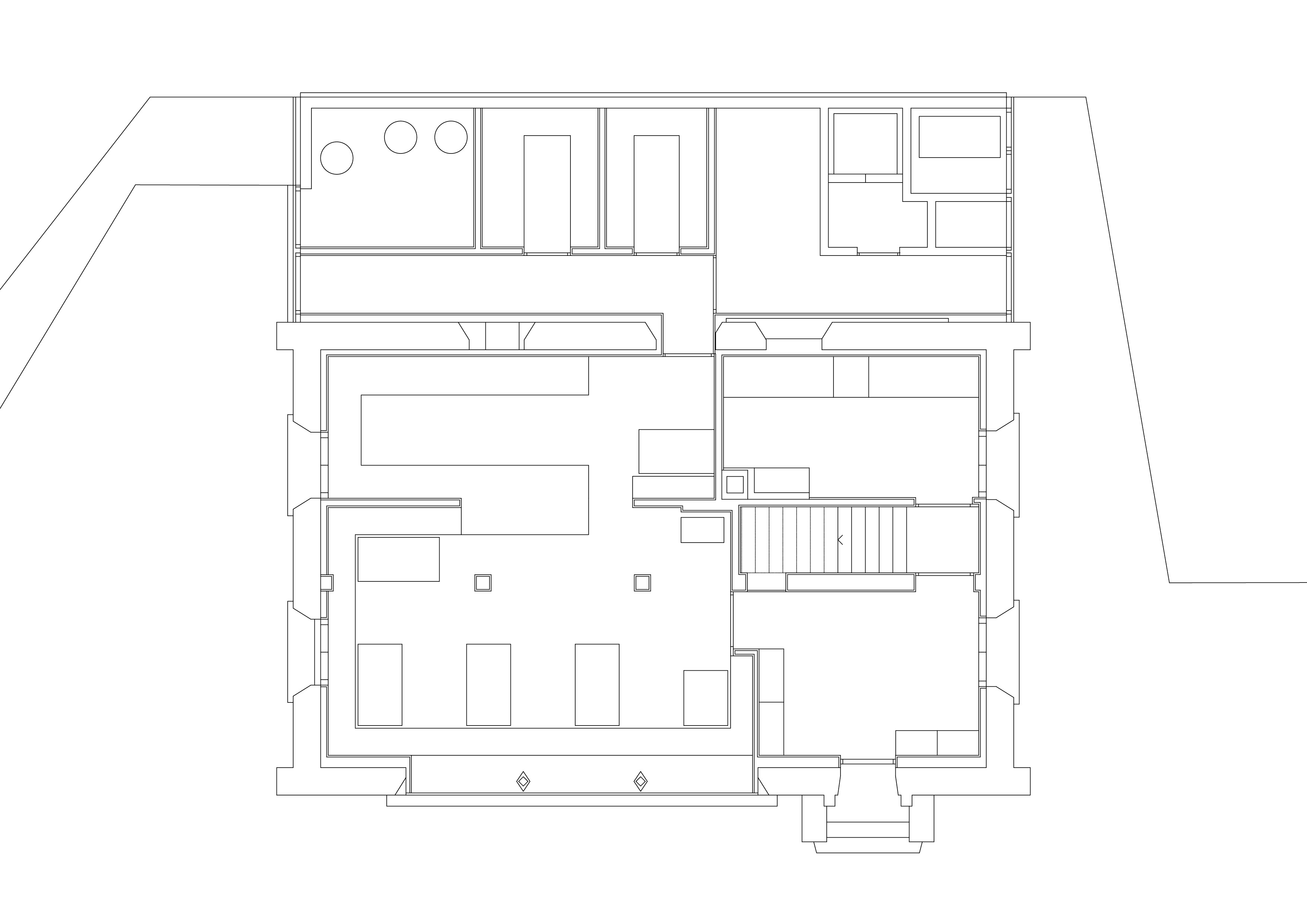
La cabane Rambert, située à 2580 mètres d’altitude, offrant une halte sur le parcours du Tour des Muverans est propriété du Club Alpin Suisse, section des Diablerets. Implantée sur un léger replat, accrochée au versant sud du Grand Muveran, la cabane est construite dans les années cinquante selon un type classique, volumétrie à toiture deux pans perpendiculaire à la pente, bâtie en pierre, fenêtres munies de volets rouges et blancs. En regard de l’affluence grandissante des visiteurs, la vétusté du lieu et son caractère rustique et fruste n’assuraient plus son bon fonctionnement. De plus, la mise en conformité de la cabane, sous les aspects, environnemental, hygiène, sécurité et autonomie énergétique s’imposait.
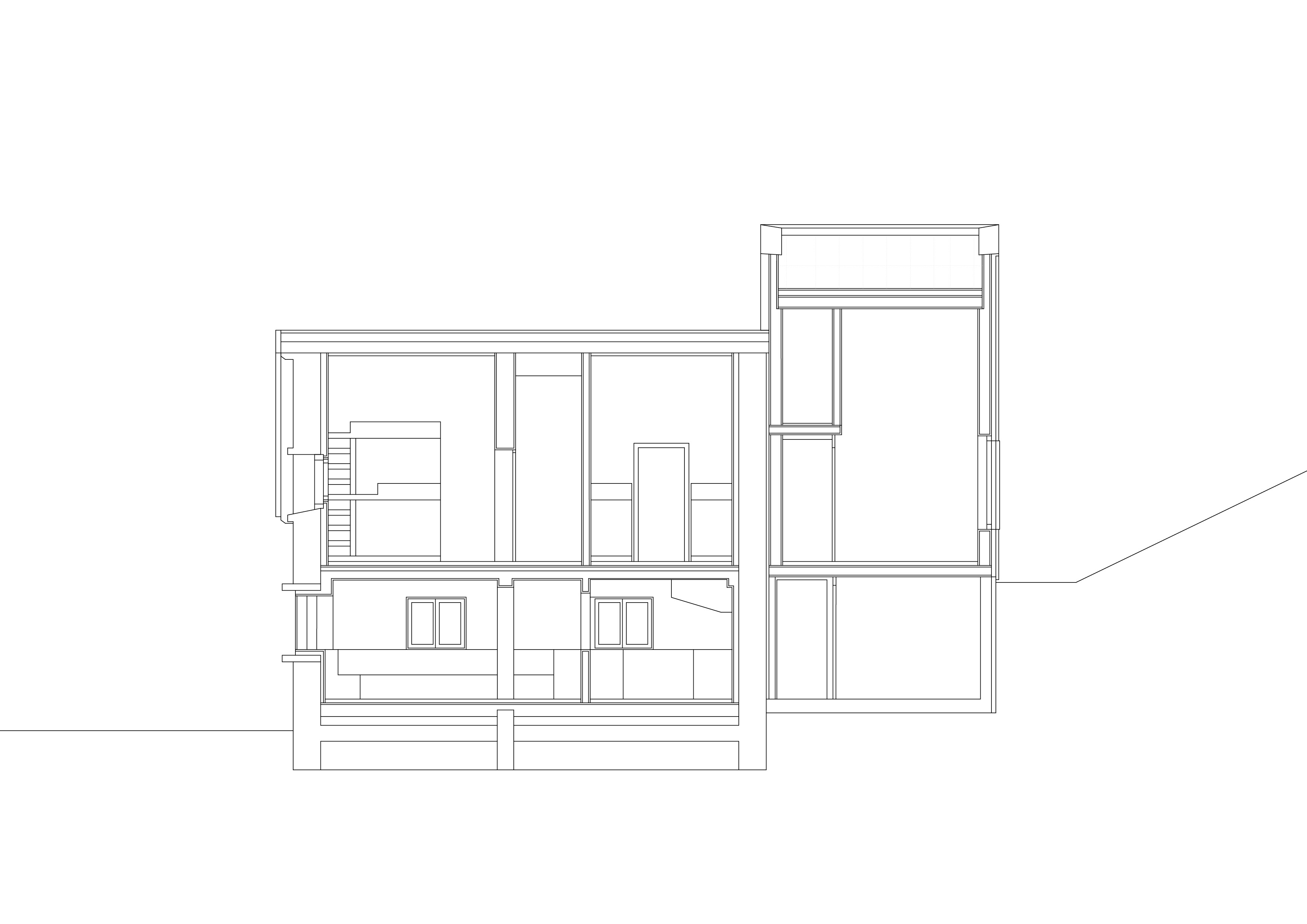
Afin de répondre à ces contraintes, tout en préservant le caractère originel de la cabane, l’intervention propose un réaménagement des espaces majeurs, réfectoire et dortoirs, dans l’ancienne cabane pour un maintien de sa substance, et une extension qui regroupe toutes les fonctionnalités qui lui faisaient défaut. L’agrandissement est accolé en façade nord, volume de trois niveaux en ossature et plancher bois, sorte de sac à dos compact et fonctionnel qui équipe le refuge d’économats, de réserve de combustibles, de sanitaires et d’un espace privatif pour les gardiens.
Un bardage en tôle inox profilée et polie recouvre les deux toits et enveloppe l’extension sur toutes ses faces, englobant les portes et les volets. Sa toiture sert au captage de l’eau, récoltée dans des citernes logées au niveau supérieur. La nouvelle annexe supporte les panneaux solaires thermiques et photovoltaïques assurant l’autonomie énergétique. Les toilettes sèches répondent aux exigences environnementales. Les différents choix constructifs et les diverses options pour les installations sont dictés par les impératifs d’une réalisation en haute montagne par héliportage et devant résister à des contraintes climatiques extrêmes.
Le réaménagement de l’ancienne cabane permet d’améliorer l’isolation thermique et de renouveler les revêtements en panneaux sapin. Les dortoirs sont réorganisés en lits indépendants pour une meilleure intimité. Le réfectoire est ouvert sur le panorama alpin, par la création d’une grande fenêtre horizontale obtenue par la réunion des trois petites fenêtres existantes, seule intervention contemporaine sur la modénature des façades en pierre.
- ClientClub Alpin Suisse, section Diablerets
- MandatConcours de projets
- StatutConstruit
- Dates2009 concours / 2015 réalisation
- ProgrammeRéfectoire / Dortoirs 30 lits / Services
- CollaborateurJonas Vandermaesen
- Ingénieur gcKälin & Associés SA
- Ingénieur cvsTecnoservice Engineering SA
- Ingénieur eLami SA
- PhotosCorinne Cuendet / BW_Diogo Marques
- Surface370 m2
- Volume1040 m3
- CoûtCHF 1'770'000.–
- typeproject