SZI —
Foyer pour adolescents Szillassy Bex

2009 - 2011

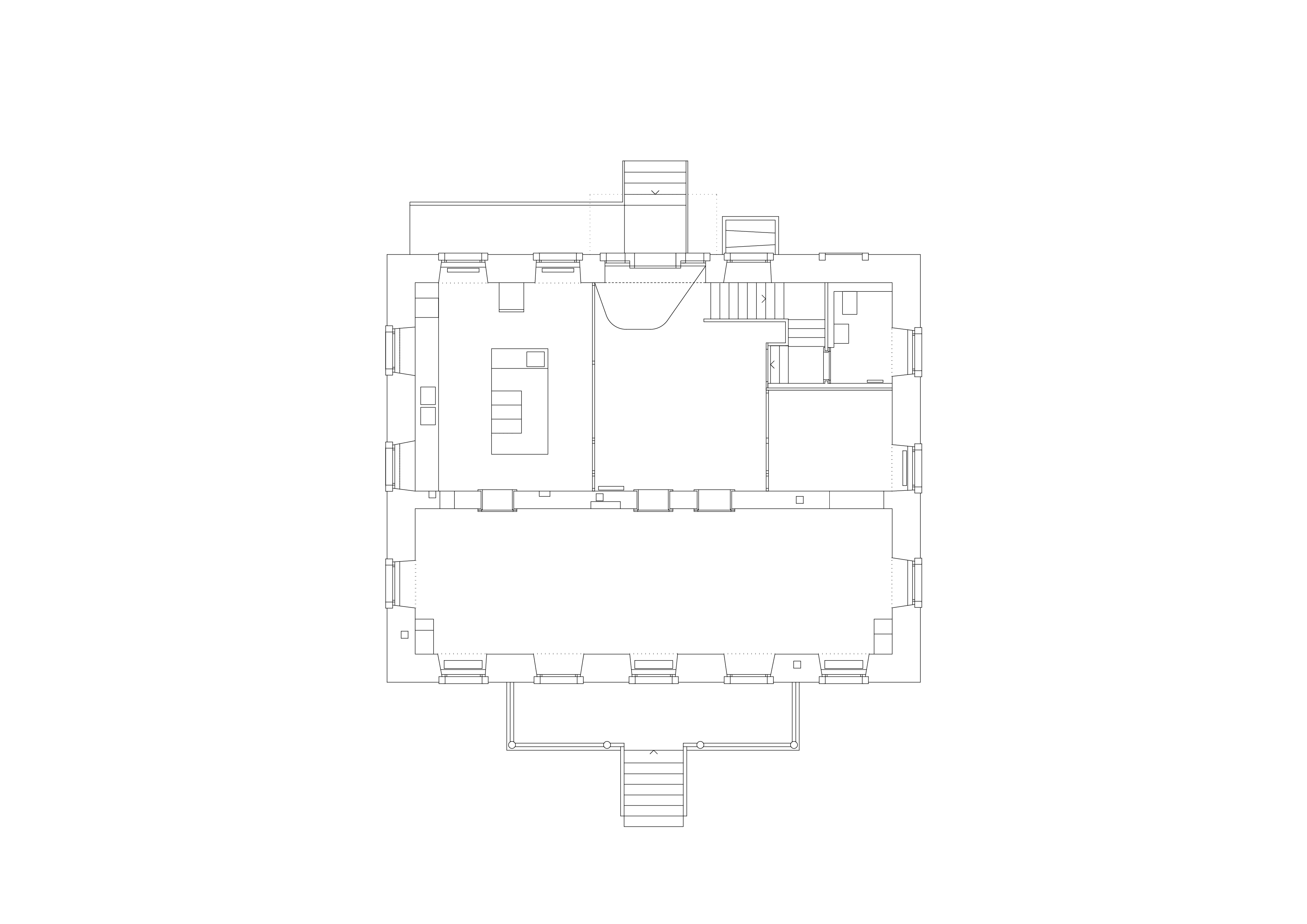
Situé dans le magnifique parc Szilassy sur les hauts de Bex, la maison jouit de vues dégagées sur les alpes. Construite en 1836 par Lady Hope, la maison est léguée en 1949 à l’Etat de Vaud avec la condition de servir l’enfance défavorisée. La maison est ainsi transformée en maison d’accueil pour adolescents en difficulté. Afin d’intégrer ce nouveau programme et de palier au déficit de surfaces, la maison est entièrement réaménagée, et ce, sur deux modes d’intervention distincts, mais complémentaires. Le rez-de-chaussée et l’étage sont rénovés de façon douce, tout en conservant une affectation proche de celle d’origine, à savoir cuisine, salle à manger et séjour, bureau et locaux de service. Les espaces sont adaptés. La rénovation est sensible, respectant et conservant les éléments anciens de valeur tels qu’escalier, menuiserie et parquet, tout en intégrant des éléments contemporains, menuiserie d’inox, verre teinté de couleur vive, résine époxy, filet nylon et cuisine.

 

L’ancienne toiture, mainte fois remaniée et affublée d’appendices multiples, est remplacée par un nouveau toit. Cette nouvelle toiture accueille un comble et un sur-comble qui offre ainsi les surfaces nécessaires à satisfaire le nouveau programme des locaux. De forme classique sur le devant, couverte de tuile plate en terre cuite, la toiture ne révèle pas de prime abord sa nouvelle vocation. C’est lorsque l’on contourne le bâtiment, que se révèle la large échancrure pratiquée dans la charpente, et refermée par un généreux vitrage d’aluminium. Derrière cette façade de verre les nouvelles chambres prennent place, ouvertes sur le parc. En contrepartie les espaces de séjour et de circulation ne sont éclairés que par les raies de lumière provenant des minuscules losanges de verre insérés dans la toiture principale.

 

La nouvelle structure, dalles, parois et charpente est entièrement réalisée en panneaux contrecollés d’épicéa massif. L’intervention est  contemporaine, mais puise son langage dans le discours vernaculaire, mêlant ainsi l’ancien et le nouveau afin de donner à la maison une nouvelle identité dans le parc et d’affirmer son nouveau statut et sa nouvelle fonction.

  • ClientConcours
  • MandatConcours
  • StatutConstruit
  • Dates2009 concours / 2010-2011 réalisation
  • Programme8 chambres / Séjours communs / Bureaux / Services
  • CollaborateurEwout Gysels
  • Ingénieur gcKälin & Associés SA
  • Ingénieur cvsChammartin Spicher SA
  • Ingénieur eLami SA
  • PhotosHannes Henz
  • Surface790 m2
  • Volume2480 m3
  • CoûtCHF 2'410'000.–

Ce site utilise des technologies non compatibles avec Internet Explorer 8, 9, 10 et 11. Veuillez s'il vous plait utiliser Edge qui est le successeur d'Internet Explorer ou tout autre navigateur.